Spatiu comercial 125 mp langa Piata Floreasca


  • 6 camere
  • 1 Bai
  • 140 mp construiti
Descriere

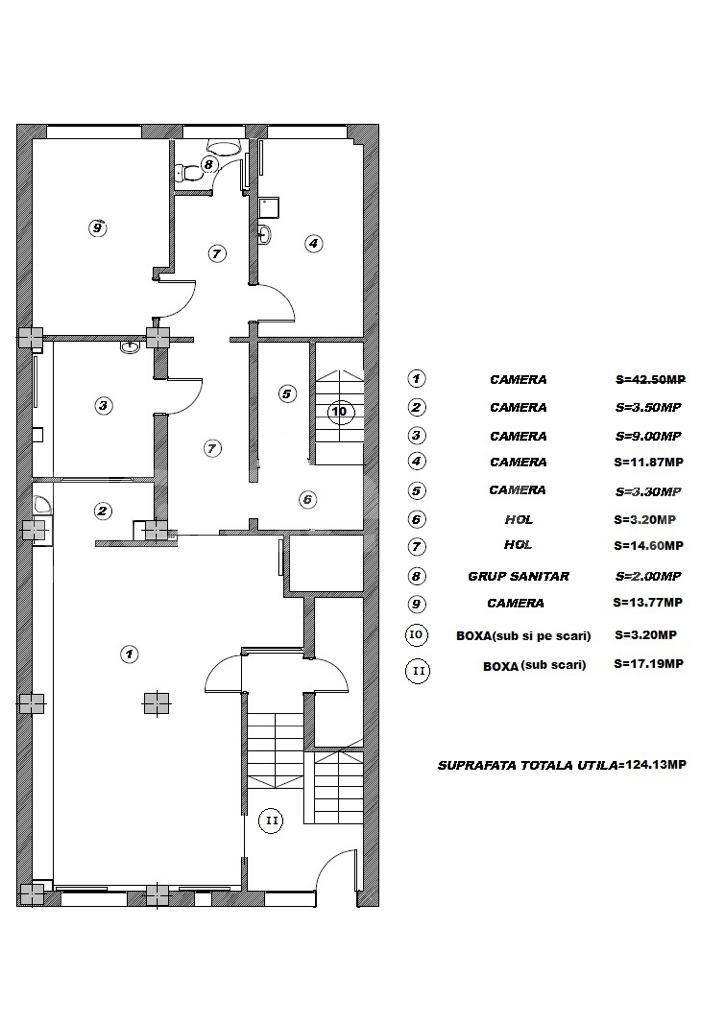
Amplasat langa Piata Floreasca, acest spatiu comercial in suprafata de 125 mp se afla la demisol unui imobil D+P+4.
Este compus din open-space de 43mp, grup sanitar, 5 camere/birouri si spatii de depozitare.
Avand in vedere zona cu trafic pietonal intens, apropierea de piata, Mega Image, farmacii, restaurante si cafenele, este pretabil pentru orice fel de activitate.

Floor Plans
€ 1.800/luna
  • 1656655, Dorobanti

    Spatiu comercial 125 mp langa Piata Floreasca

Similar Properties


€ 1000/luna
  • 2 Camere
  • 1 Bai
  • 70 mp

Situat in zona Dorobanti, acest apartamanet de 2 camere este situat la etajul 2 al unui imobil P+2+Mansarda, cu vedere frontala la strada principala. Are o suprafata totala de 70mp si 60mp... Citeste mai mult

€ 1.200.000
  • 7 Camere
  • 5 Bai
  • 500 mp

Amplasate in zona Dorobanti - Capitale, pe o strada linistita si plina de verdeata, aceste 2 apartamente se afla la demisolul si la etajul 2+Pod ale unei vile D+P+2+Pod. Suprafata construita totala... Citeste mai mult

€ 165.000
  • 2 Camere
  • 2 Bai
  • 70 mp

Situat in zona Dorobanti, acest apartament cu 2 camere se afla la etajul 1 al unei vile P+2. Are o suprafata totala de 70mp si 55mp utili. Este compus din living cu iesire pe balcon, chicineta,... Citeste mai mult