3 bedrooms unfurnished apartment, 2 garages, modern finishes


  • 3 Bedrooms
  • 3 Baths
  • 200 sqm built
Description

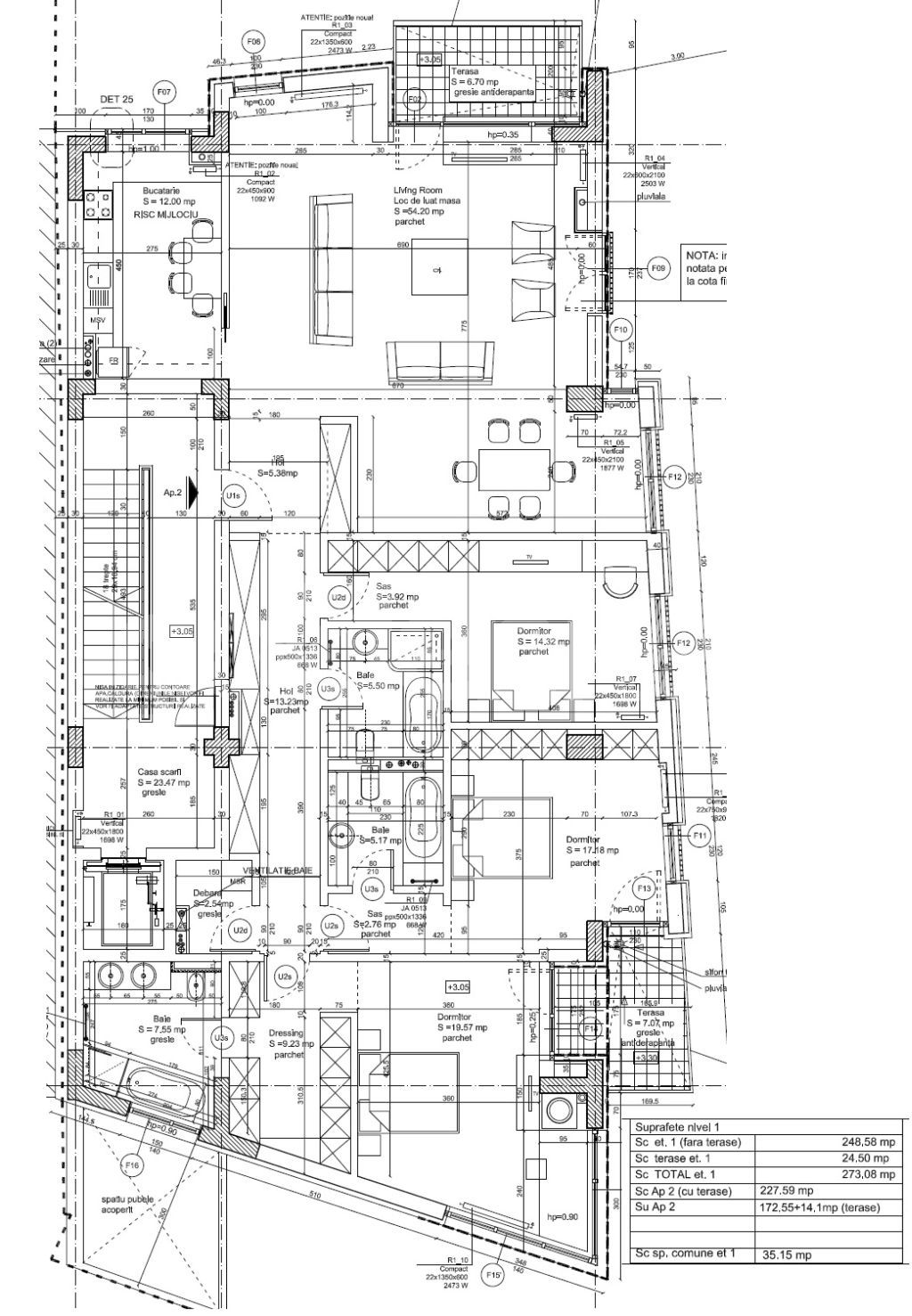
This 3 bedrooms apartment is placed in Kiseleff area, a few minutes walking from the Park, on the 1st floor of a building Ug+Gf+5.
It has a total area of 200sqm, 173sqm usable and 14sqm terraces.
Consists of large living room with dining area and exit on the terrace, separate kitchen and equipped, 2 master bedrooms with en-suite bathrooms and exit on the terrace and secondary bedroom with bathroom on the hallway.
Includes 2 parking spaces in the garage (Klaus system) and 1 storage.
The apartment is unfurnished and is suitable for residence.

Floor Plans
€ 3.500/month
  • 280083, Kiseleff

    3 bedrooms unfurnished apartment, 2 garages, modern finishes

Similar Properties


€ 2800/month
  • 2 Bedrooms
  • 3 Baths
  • 180 sqm

This bright 2 bedrooms apartment is located in Kiseleff area, in a residential compound with permanent security, on the 3rd floor of a building Ug+Gf+5 completed in 2010. It has a total area of... Read more

€ 2000/month
  • 4 Bedrooms
  • 3 Baths
  • 240 sqm

Located in Kiseleff area, this 4 bedrooms apartment is on the 2nd floor of a building, with GF + B + 6, finished in 2003. It has a total area of 240mp, 200mp usable and 19mp terrace. It consists of... Read more

€ 3500/month
VIDEO
  • 3 Bedrooms
  • 4 Baths
  • 220 sqm

Located in Kiseleff area, this 3 bedrooms apartment is on the 2nd floor of an Ug+Gf++5 completed in 2012. It has a built area of 220sqm of which 156sqm usable and 40sqm terraces. It consists of... Read more