2 bedrooms penthouse apartment, generous terrace


  • 2 Bedrooms
  • 1 Baths
  • 234 sqm built
Description

Located in Herastrau area, near French Village-Le Club, this 2 bedrooms penthouse apartment is on the 5th floor of an Ug+Gf+5 building completed in 2005.
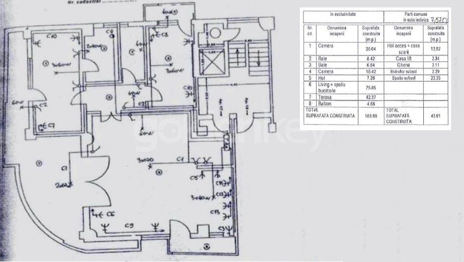
It has a total area of 234sqm of witch 129sqm usable and 40sqm terrace.
It consists of large living room with dining area and access on the terrace, open and fully equipped kitchen and 2 bedrooms that share 1 bathroom.
Separately, 1 parking space in the underground garage can be purchased for 30,000 euros.
The apartment has high quality finishes and has been furnished and equipped by an interior designer.

Floor Plans
€ 575.000
  • 33183, Herastrau

    2 bedrooms penthouse apartment, generous terrace

Similar Properties


€ 790.000
VIDEO
  • 3 Bedrooms
  • 2 Baths
  • 200 sqm

Located vsv French Village, 100m to Herastrau Park, this 3 bedrooms apartment is at the 1st floor of an Ug+Gf+4 building. It has nice view over green area from all rooms. It has a built area of... Read more

€ 350.000
  • 1 Bedrooms
  • 1 Baths
  • 0 sqm

Placed in a residential compound in Herastrau area, 3 minutes walking to the park, this 1 bedroom apartment is at the 3th floor in an Ug+Gf+5 building, finalized in 2022. It has a total surface of... Read more

€ 1700/month
  • 2 Bedrooms
  • 2 Baths
  • 165 sqm

Located in secure residential compound, at the Gf of an Ug+Gf+5 building, this 2 bedrooms apartment with exclusive garden 100sqm, has the benefits of the common indoor pool and gym. There are... Read more