Apartament cu 3 camere de închiriat cu vedere frumoasa asupra zonei


  • 3 Camere
  • 2 Bai
  • 125 mp construiti
Descriere

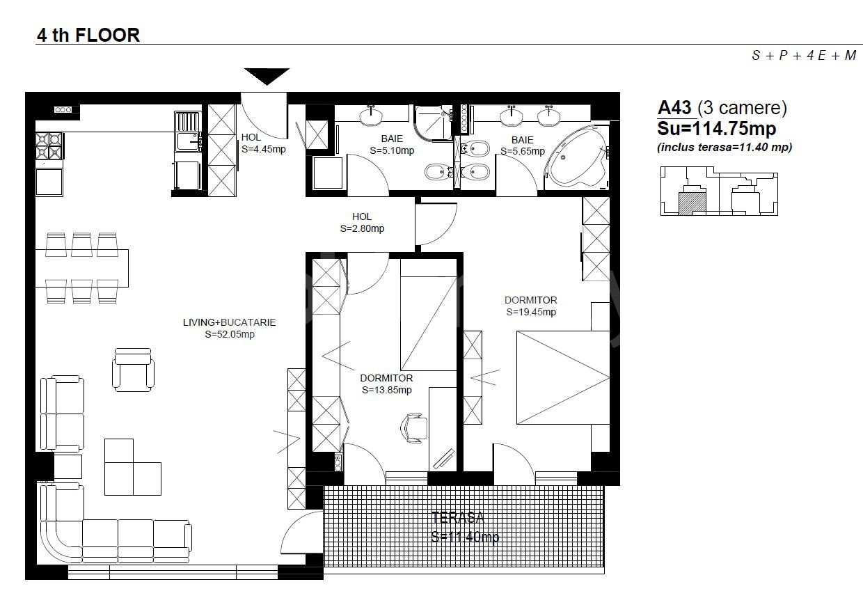
Situat in zona premium Primaverii, cu o vedere frumoasa, acest apartament cu 3 camere se afla la etajul 4 al unui imobil S+P+4+M.
Are o suprafata totala de 125mp si 114.75mp utili.
Este compus dintr-un living insorit cu iesire pe terasa, bucatarie deschisa si echipata, dormitor matrimonial cu baie proprie, dormitor secundar si baie secundara.
Apartamentul este complet mobilat si dispune de 1 loc de parcare in garajul subteran.

Floor Plans
€ 2.200/luna
  • 10827, Primaverii

    Apartament cu 3 camere de închiriat cu vedere frumoasa asupra zonei

Similar Properties


€ 650.000
  • 4 Camere
  • 0 Bai
  • 160 mp

Amplasat in cea mai exclusivista zona a Capitalei, acest apartament se afla la etajul 2 al unei vile construita in 1950, D+P+2. Are o suprafata totala de 160mp cosntruiti din care 140mp utili... Citeste mai mult

€ 800/luna
  • 4 Camere
  • 2 Bai
  • 115 mp

Acest apartament cu 4 camere este situat in zona Primaverii, la etajul 2 al unei vile P+2+M si are o suprafata utila de 101mp. Este compus din living cu bucatarie deschisa si echipata si iesire pe... Citeste mai mult

€ 1.590.000
  • 15 Camere
  • 8 Bai
  • 850 mp

Situat pe o straduta selecta si linistita a cartierului Primaverii, acest imobil D+P+3 se afla la cateva minute de mers de parcurile Bordei si Herastrau, langa P-ta Charles de Gaulle. Are o... Citeste mai mult