Apartament cu 4 camere | finisaje premium | locatie verde


  • 4 Camere
  • 4 Bai
  • 206 mp construiti
Descriere

Acest apartament modern cu 4 camere este situat in zona verde si linistita Kiseleff, are o vedere frumoas? si se afla la etajul 2 al unui imobil S+P+5 finalizat in 2012.
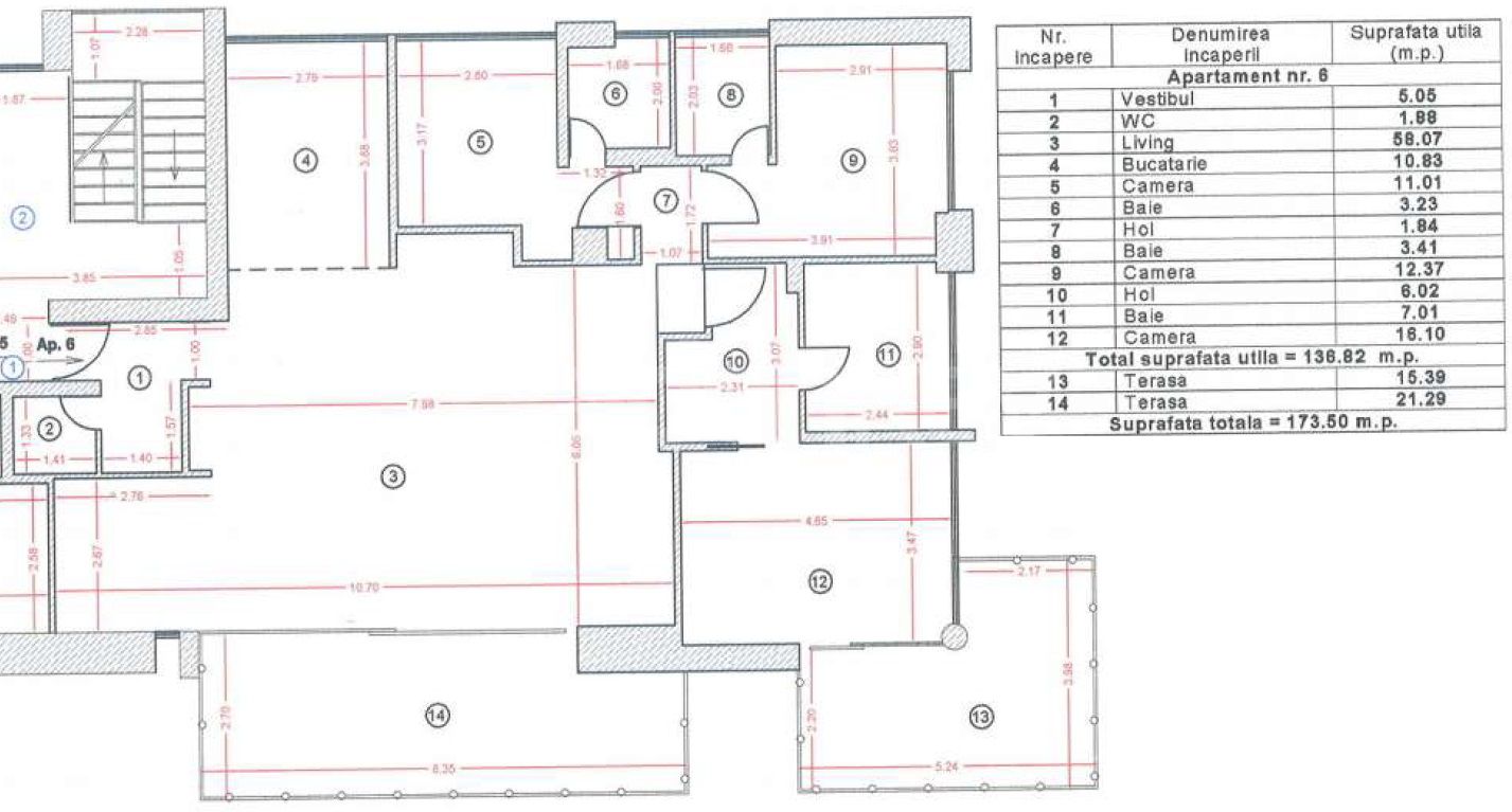
Are o suprafata totala de 206mp, 137mp utili si 37mp terase.
Este compus dintr-un living spatios insorit cu zona de dining de 58mp, bucatarie complet echipata, grup sanitar, dormitor matrimonial cu baie proprie, zona dressing si terasa, plus inca 2 dormitoare secundare cu bai proprii.
Beneficiaz? de finisaje de inalta calitate (ferestre Schuco, incalzire in pardoseala, piatra naturala) si de 1 loc de parcare in garajul subteran.
Fiind amplasat intre parcurile Kiseleff si Herastrau, la cateva minute de mers de restaurante, cafenele, piata si supermarket-uri, acest apartament este potrivit pentru rezidenta.

Floor Plans
€ 800.000
€ 2.500+TVA/luna
  • 988731, Kiseleff

    Apartament cu 4 camere | finisaje premium | locatie verde

Similar Properties


€ 3000/luna
  • 3 Camere
  • 2 Bai
  • 140 mp

Amplasat in zona Kiseleff, acest apartament cu 3 camere se afla la etajul 6 al unui imobil S+P+7 din 2018. Are o suprafata construita de 140mp dintre care 111mp utili si 18mp terasa. Este compus... Citeste mai mult

€ 1.300.000+TVA
  • 5 Camere
  • 5 Bai
  • 320 mp

Acest apartament penthouse cu 5 camere este situat in zona Kiseleff, are o vedere frumoasa asupra parcului si se afla la etajul 5 al unui imobil S+P+5. Are o suprafata totala de 320mp, 192mp utili... Citeste mai mult

€ 3000/luna
  • 10 Camere
  • 3 Bai
  • 300 mp

Amplasata in zona Kiseleff, la mica distanta de Arcul de Triumf si Parcul Kiseleff, aceasta vila cu 10 camere este dispusa D+P+2+M si are o suprafata utila de 250mp. La demisol sunt spatii de... Citeste mai mult