Office spaces in north area


  • 0 Bedrooms
  • 10 Baths
  • 1051 sqm built
Description

This office space is situated near Herastrau Park area, close to Aurel Vlaicu Metro Station, with a total area of 1051sqm, 794sqm usable and 151sqm terraces.
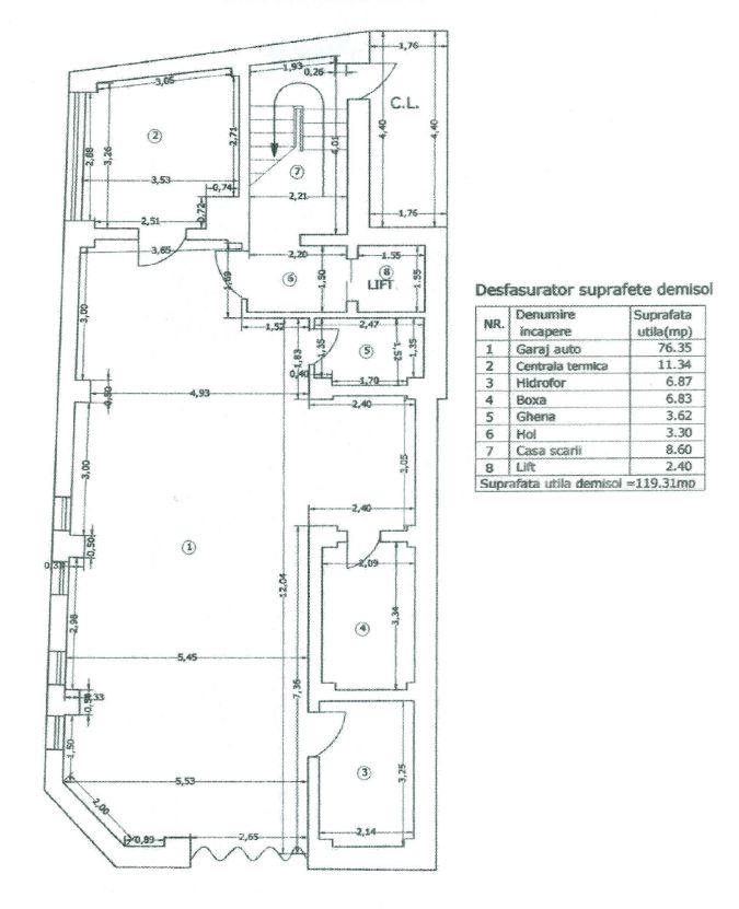
The basement is composed of garage, technical room, hydrophore room and storage room.
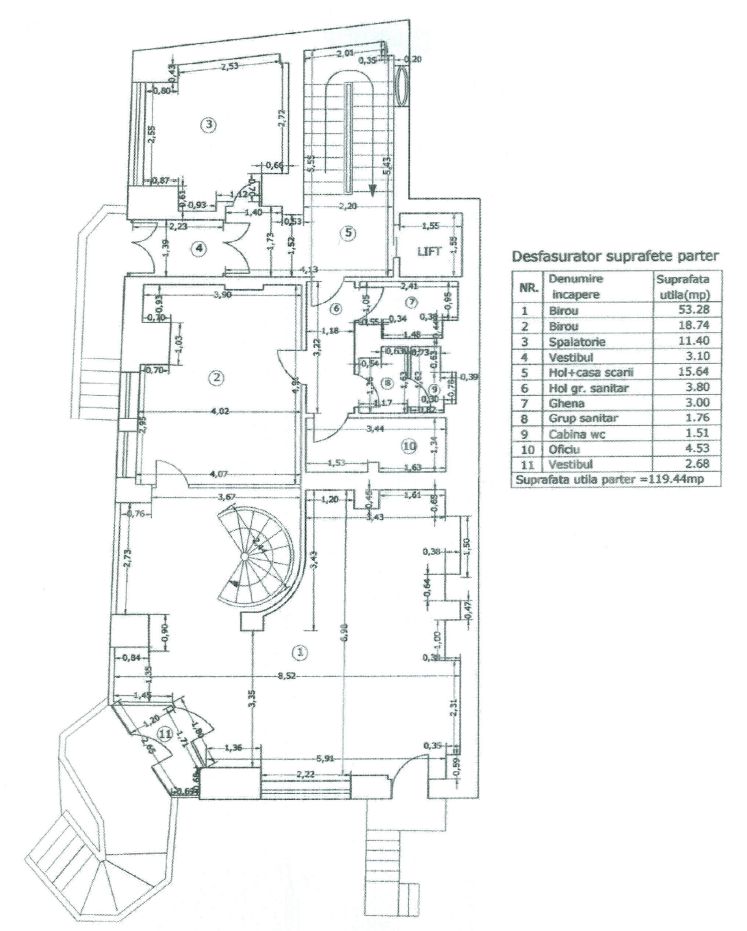
At the ground floor there is open space, meeting room and toilet.
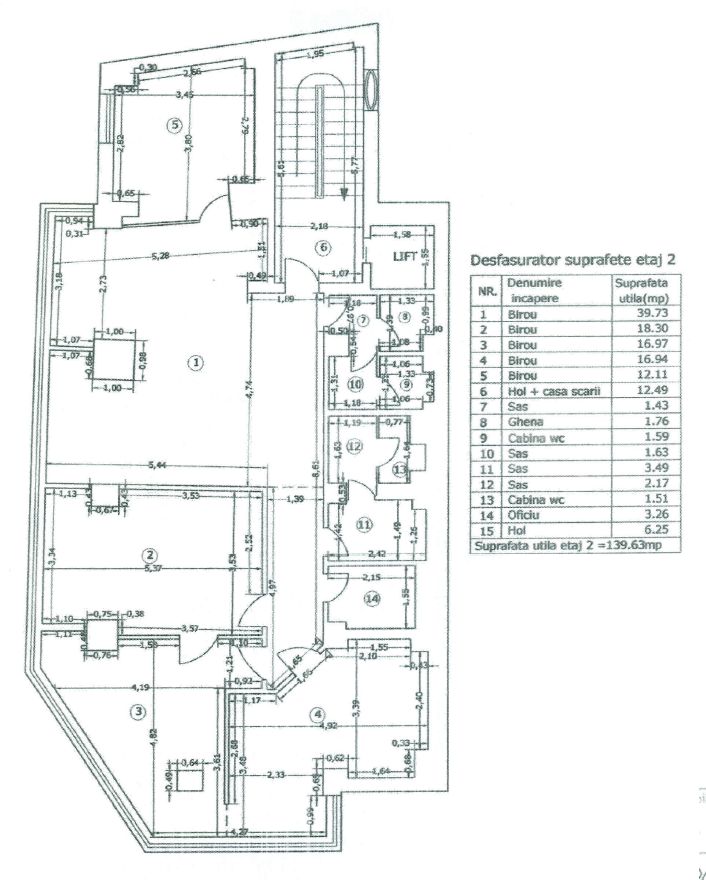
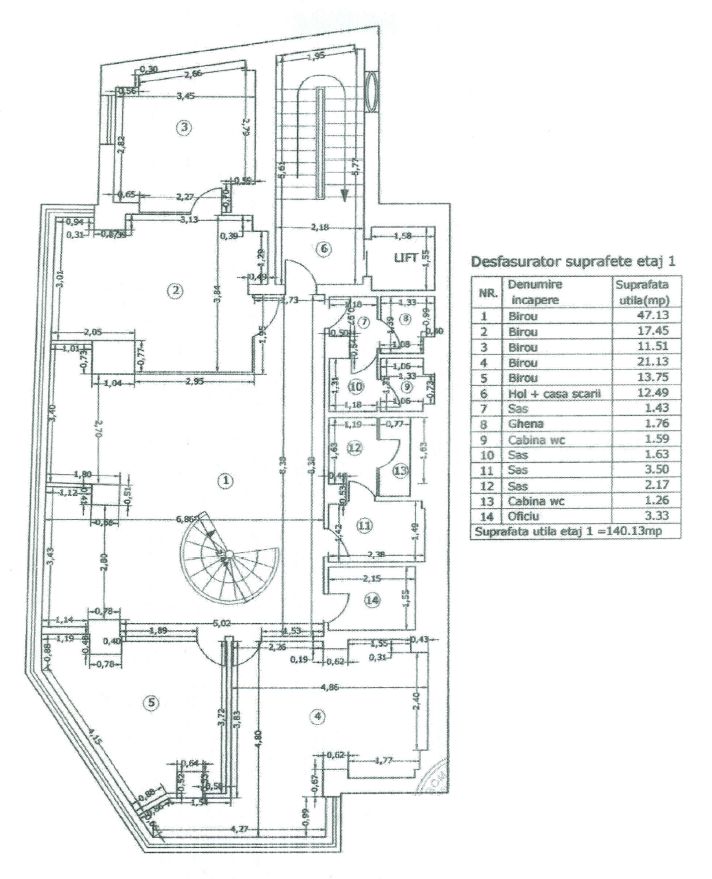
The 1st and 2nd floors have an open space, 4 managerial offices, kitchen and 2 toilets.
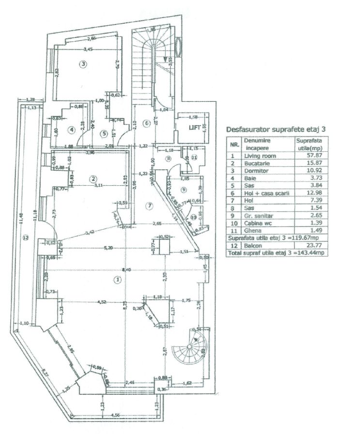
The 3rd floor is composed of open space, kitchen, toilet, office and bathroom.
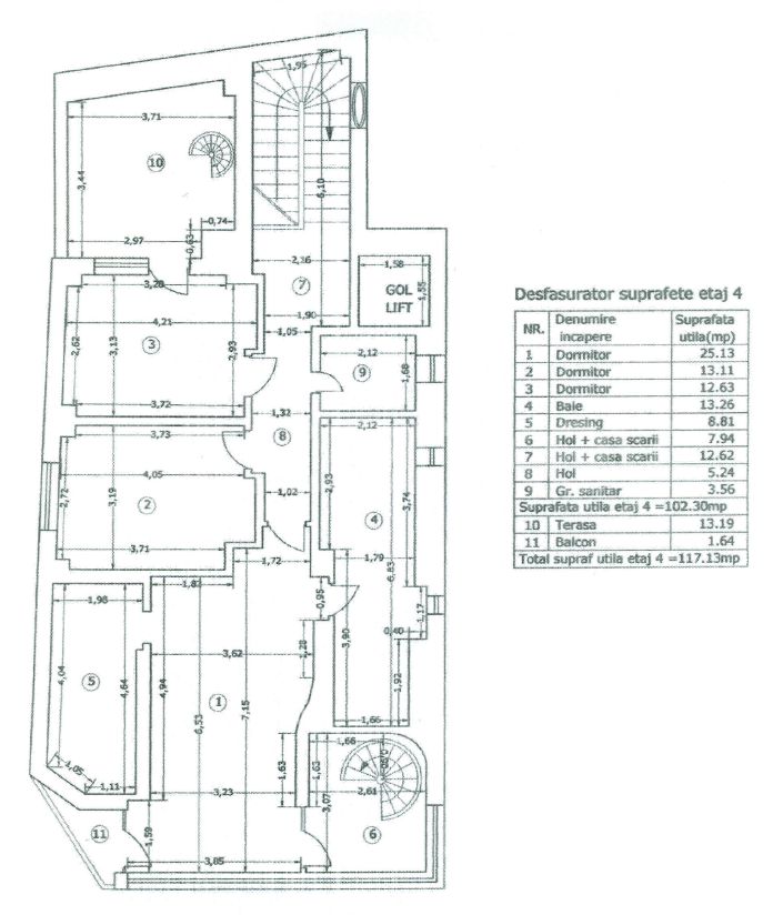
At the 4th floor there are 3 managerial offices, bathroom, dressing and toilet.
Regarding the position and the facilities, it is perfect for offices, medical clinic or other commercial activities.

Floor Plans
€ 8.000/month
  • 626163, Soseaua Nordului

    Office spaces in north area

Similar Properties


€ 2500/month
  • 3 Bedrooms
  • 3 Baths
  • 210 sqm

Right in front of Herastrau Park, in a residential compound with outdoor swimming pool and garden, this 3 bedrooms apartment is at the 4th floor of a Ug+Gf+4 building. It has a built area of... Read more

€ 870.000
€ 2800/month
  • 2 Bedrooms
  • 3 Baths
  • 220 sqm

Facing the Herastrau Park, with best view over greenery, this sunny 2 bedrooms apartment is at the 1st floor of an 2Ug+Gf+6 building. There are 220sqm built, 180sqm usable and 2 balconies. It has... Read more

€ 1550/month
  • 2 Bedrooms
  • 2 Baths
  • 125 sqm

In front of Herastrau Park, exquisite location, panoramic view, this 2 bedrooms apartment is at the 4th floor of a 2008 2Ug+Gf+6 building. It has 125sqm built, 90sqm usable and 11sqm terrace. It is... Read more