Commercial space of 236sqm for sale


  • 8 rooms
  • 2 Baths
  • 260 sqm built
Description

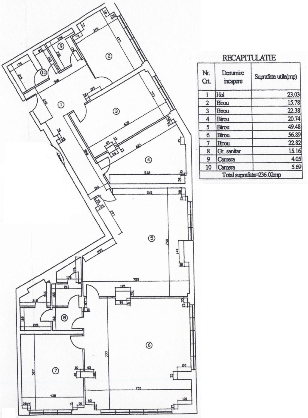
Located on Nordului St., at the ground floor of a residential building Ug+Gf+6 finalized in 2006, this commercial/office space has a usable area of 236sqm.
There are 8 rooms, 2 toilets and kitchen.
Can be easily rearranged.
It is perfect for offices or commercial activities (medical Clinique, fitness, beauty salon).

Floor Plans
RENTED
€ 450.000+VAT
  • 8231, Soseaua Nordului

    Commercial space of 236sqm for sale

Similar Properties


€ 2300/month
  • 2 Bedrooms
  • 3 Baths
  • 210 sqm

Located in Herastrau area, a 2-minute walk from Herastrau Park, this 2 bedrooms apartment is on the top floor of an Ug+Gf+5 building with 24/7 security and video surveillance. It has a built area of... Read more

€ 1.250.000
€ 3900/month
  • 5 Bedrooms
  • 4 Baths
  • 360 sqm

Located 150m to Herastrau Park, on a side quiet street with no traffic, this 5 bedrooms villa is on 3 levels, Gf+1+At, built in 2000 and totally renovated in 2020. There are a total of 360sqm built... Read more

€ 2000/month
  • 3 Bedrooms
  • 3 Baths
  • 230 sqm

Located 3 minutes walking Herastrau Park, easy access to metro and supermarket, in a secured residential compound, this Gf+1 villa has 3 bedrooms. There are 230 sqm build, 180sqm usable and 80sqm... Read more