3 bedrooms penthouse apartment with generous terraces


  • 3 Bedrooms
  • 3 Baths
  • 357 sqm built
Description

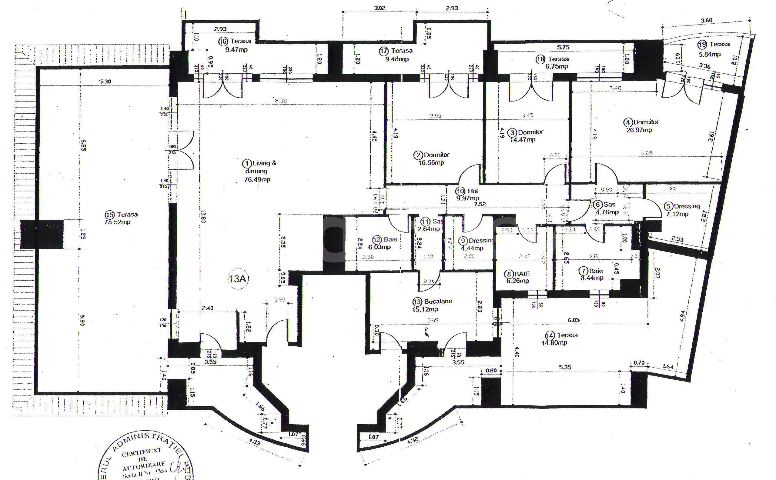
Located in Herastrau area, near French village-Le Club, this 3 bedrooms penthouse apartment is on the 5th floor of a building Ug+Gf+5 completed in 2004.
It has a total area of 357sqm, 202sqm useful and 155sqm terraces.
It is composed of a sunny living room(76sqm) with dining area and exit on the terrace (78sqm), separate kitchen, shower toilet, master bedroom with en-suite bathroom and dressing room, 2 bedrooms that share a single bathroom and 2nd dressing room. All rooms have a terrace exit.
Includes 2 parking spaces and 2 storage rooms in the garage.
The apartment is sold unfurnished.

Floor Plans
€ 650.000
  • 145795, Herastrau

    3 bedrooms penthouse apartment with generous terraces

Similar Properties


€ 220.000
€ 850/month
  • 1 Bedrooms
  • 1 Baths
  • 83 sqm

Located in the premium Northern Area, near Herastrau Park, this apartment is on the 1st floor and has 83sgm built area and 65sqm usable. It is composed of living room with dining area, open equipped... Read more

€ 600.000+VAT
  • 0 Bedrooms
  • 1 Baths
  • 210 sqm

Located in the premium Northern Area, near Herastrau Park, with panoramic views over the Herastrau, this high quality residential project is composed of one building with 13 levels, 2Ug+Gf+11. There... Read more

€ 899.000+VAT
VIDEO
  • 4 Bedrooms
  • 4 Baths
  • 347 sqm

Located in the premium Northern Area, near Herastrau Park, with panoramic views over the Herastrau, this high quality residential project is composed of one building with 14 levels, 2Ug+Gf+11. It is... Read more